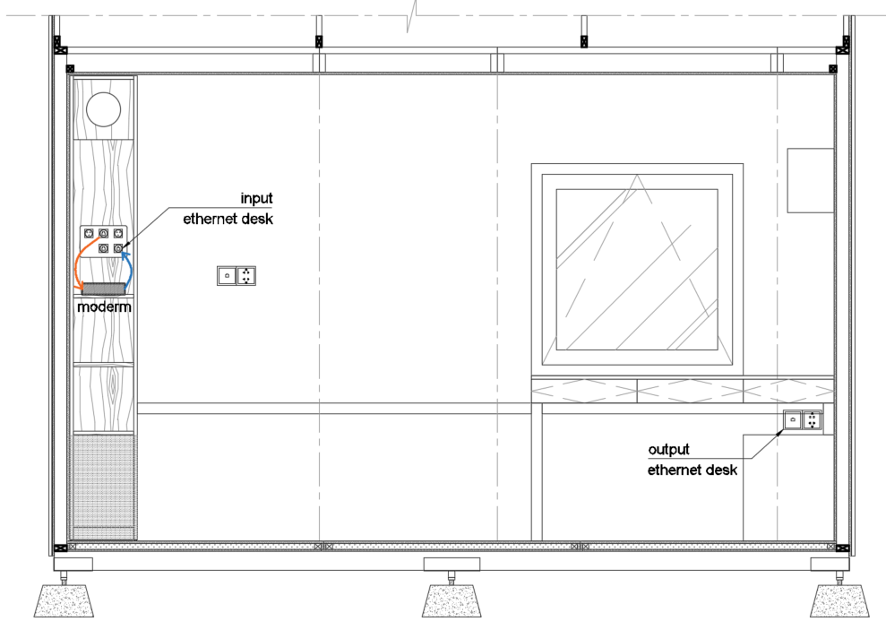
Yes, Studio Pod is included input and output for ethernet desk as picture below. Cable is not included.

Modified on: Wed, 19 Jul, 2023 at 4:57 PM
Yes, Studio Pod is included input and output for ethernet desk as picture below. Cable is not included.

Did you find it helpful? Yes No
Send feedback